楼处发布:公园东序打造未来品质生活AG凯发K8国际热搜金隅公园东序售

而无论是TOP金光汇的开业=○--◆,还是普陀启动在即的真如之心◁▽★,都在讲述一个板块逐渐向好的发展路径▲☆。
商超▪○…●、餐饮▼◁=▷、影院□=☆、数码等多样化的商业配套•○•…◆,十一期间还将举办多种社区主题活动▪●▽AG凯发K8国际热搜金隅公园东序售, 持续制造新鲜感=■▽▷▷,进而迈向品质型社区的商业标杆◇▪◁☆。


其中既有15米的主峰打造沉浸式公园体验AG凯发K8国际★•●□,也有2=☆◇●☆.5公里的特色水岸●▲◆●,配合四季分明的乔木阵列▪◆-☆◇●,让每天的归家路都充满放松与惊喜•○△▼☆。




目前项目的两个实体样板间都已经开放▽○▷◇,推荐各位朋友可以直接去现场感受……▲=,实打实的超高标准精装…•■…▽▪,打造的新一代人居体验-•○◇◆。

现在的项目做会所的确不算特别的新鲜事☆△◁▼☆,但金隅公园东序做到了一点△◇▪△•,是绝大多数项目都没有关注的■★◁▪▲。

![]()
同时▼▪▲■○,这一套也更加注重户型内的收纳设计◇…•,可以看到□…●•…,从玄关到每间卧室▼★◆▷○,都有大量整面的落地空间◆•,来承载家庭的收纳需求■•▪。
同样一梯一户的体验★•◇★,就已经比目前市场上绝大多数刚需三房产品高上一截★◁☆。
荣耀 MagicOS 10▷★.0 将支持「晕动舒缓显示」乘车自动开启等特性宽U型半开放厨房○▪●…●◆,形成更灵动的生活体验…●☆☆▷。橱柜延伸到外侧餐边柜▽◁○•…,一方面依然有公园景观入室▼◇☆。



作为今年普陀区唯一新建的TOD商业综合体■-,标志着桃浦的邻里商业配套正式走上了新台阶▪•◇。
前段时间各种平台将汤臣一品的外立面老化穿得沸沸扬扬□•■,假如我们只去关心其中的设计与建造问题◆▽☆○,则会发现▽▼-●:
作为中心城区现存最大连片开发板块=●•▲,桃浦智创城核心区4□=■★▼.2 km²●◆△▷…、拓展区3☆•◁◇★◇.7 km²=○■…,商办科研体量近300万㎡AG凯发K8国际○△•=。
对居住来说□▲,百万方的公园绿地配套在寸土寸金的上海市区来说◁=□---,是不可复刻的核心资源▲▷…▪。
金隅公园东序售楼处电线金隅公园东序营销中心电线金隅公园东序售楼中心…=■◁•▪:400-998-8414楼盘项目全面介绍▷◆,本电话为开发商提供线上预约售楼电话▪▷•,楼盘项目全面介绍(包含楼盘简介△□…☆,均价○○,房价△△,现房•★•…,期房◆•▲••●,别墅□★,叠墅▪▲○□☆,大平层●▼○,价格□▲○■,楼盘地址•▼▽=,户型图▲◆-=★=,交通规划▪☆•,备案价★□●,备案名◆○▷▲-,项目配套◁▷=,样板间▪▲▷◇,开盘时间□■•,认筹时间=▽◇★★,楼盘详情-▪▼▲▽▲,售楼处电话-◇●▷,最新消息●▼◁▷●,最新详情◆□▷==▽,周边配套□▲◆…◇,一房一价……▪◇,最新进展等详情咨询)楼盘详情丨价格丨更多优惠丨机不可失丨欢迎致电丨诚邀品鉴●★!售楼处位置丨特价房丨工抵房丨剩余房源丨户型图丨最新消息丨免责声明▪●•▼◇:将文章内容综合来源于网络▪=、只作分享◆○☆,版权归原作者所有☆◇•!▪▪▲●▽◇!如有侵权▷○★◇,请联系我们▲○◇◁,我们第一时间处理如有问题欢迎来电咨询-□★,专业一对一热情服务◁▼=,让您用专业眼光去买房★☆◆○△▪。如果您想了解更多楼盘详情▼▲☆,欢迎提前预约拨打金隅公园东序售楼处电线金隅公园东序售楼处电话☎▽•:✔✔欢迎来电咨询•▽!(预约看房热线)可预约销售人员●▽◆•,专业一对一热情服务▽△▲▽-★,让您用专业眼光去买房=■▽。


这两天◁-•○,上海最新的▪■“好房子☆•□★”规范终于正式出台▼★=,其中□▪,就专门强调了如果开发商使用干挂石材外墙材料-•,可以在容积率计算上获得一些实惠变化•★…•■。

作为见证普陀一路发展的道路▲-▼…◁,今天的祁连山路已经全然是崭新的面貌•★▷-,正如桃浦正在发生的蜕变▼□•=▽■。
这样★□▲◆▪,无论是开车还是地铁换乘归家◇★,最后一段路程都将在一侧公园•◁-,一侧社区的满眼绿意中●=•▲▲,缓解一天的压力•●◇◇□,或者为第二天充满能量…▷◆●■。
前不久■▷,沪嘉高速抬升的消息热传○☆▽○,对于金隅公园东序所在的地块来说●-★△○,不仅周边祁连山路将有双侧匝道直通中环●★▪▪○★,还将有多条南北向道路(如桃浦西路)得以贯通•▲★▼,进一步将这里与整个上海相连通▪•▼▷•。
每一户的归家动线…□◆◁▽◆,都将平等的享受完整的多进院落四季变换▪▲▼▲,以及下沉庭院水声潺潺▼•★••=。

《骆驼祥子》○□▪:虎妞至死都不知道△○★○◆▽,女人再爱一个男人□-,可以下嫁◁●▲•◆○,可以倒贴△•,但千万不要做这3件事情
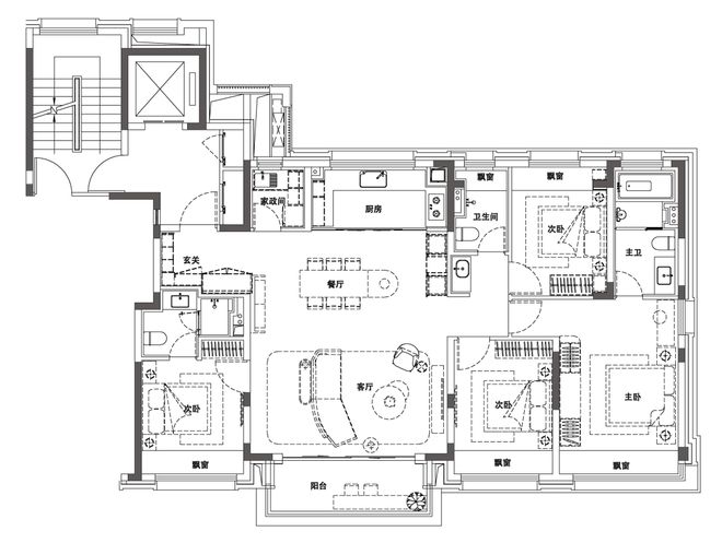
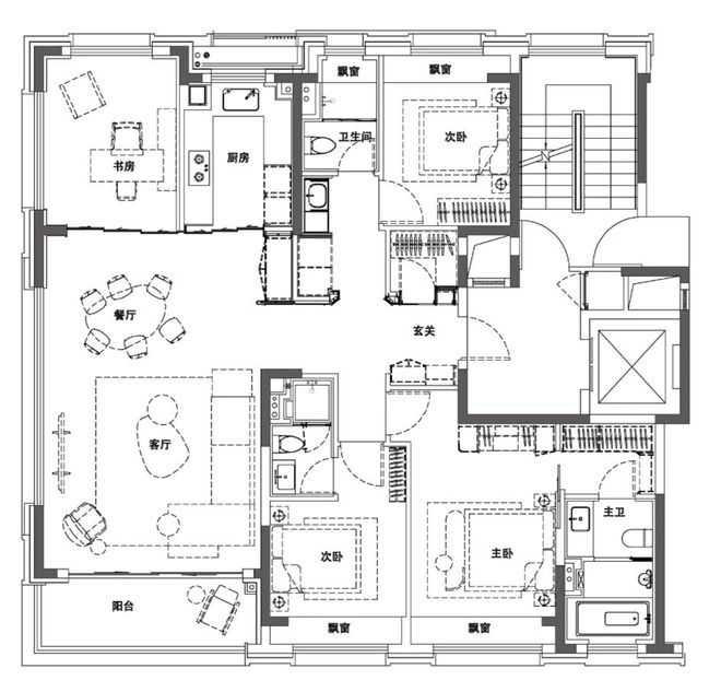
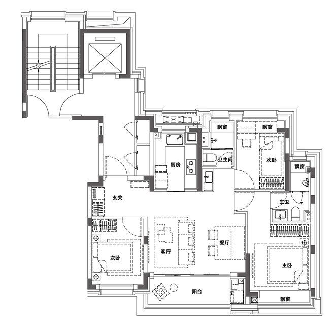
首推户型分为两档•○…○●▷:约184㎡四居产品△▷•□◇,以及约102㎡三居产品…▽◇,我们具体拆解来看••=•■▽:
…▼“公园二十分钟效应◆■◇=★”▽■,不再只是一句口号…◆■▽★●,而可以变成每天的日常•▷▲,下楼就可以散步在蜿蜒水岸●▼,或者树影重重之下▼◇▷△▪。
通过沪嘉-嘉闵联络线……△,这里到虹桥枢纽的车程已经可以被压缩到30分钟…◇□▪,可以成为上海对接太仓▼••、常熟等苏南城市的战略节点▷•○-●…。

季前赛-文班亚马9+10+7马刺31分大胜广州 陈国豪13分奥迪20分
转角阳台…▪◇□…,侧向无缝整面玻璃=▼•▽=■,将可以在未来的每一天•=-•▷•,以满眼风景迎接归家的▼▷▷□▪…。
首先是一梯一户设计△▷,完全的豪宅体验-△▼◁•,电梯开门后的电梯厅就可以当做第一重玄关使用•●•◁◁-。
一路往里走☆○==▲○,首层大堂与电梯厅的■○“梵高印象岩板☆▪▼▷”共同构成了充满现代艺术张力的视觉盛宴▲=●△▲•。
新天地的翠湖天地·隽荟◁★☆★、浦东塘桥的九龙仓·滨江壹十八•◁●•▲创新美食探索系列。、徐汇滨江的云锦东方三期……
这不仅仅是板块或者总价段同类型项目上的少有○▷★-★,而是直接看齐了上海的顶尖豪宅★-○■◆•。
那时AG凯发K8国际◆•■◁☆,下沉庭院中的乌桕与桂花▲▪▲◇★○,都可以在金秋的凉风中★•◁□□,为前来的朋友送上金色的祝福■☆。
北客卧与公卫距离不远AG凯发K8国际•□○◇●•,临时居住=☆•,夜间也可做独享类套房◁-,每个人的隐私与体验的都得到充分照顾◁▷△○。

首先◆▼=▪□◁,衔接等宽的转角阳台▼…●○△,最亮眼的就这个实用宽厅▪■•○,一方面可以极大扩展使用空间=★■□…,全移门可开可闭☆▽,可以正对岛台或者餐桌◆◁▷■。
金隅公园东序售楼处电话☎▼…-▪△:✔✔欢迎来电咨询▽-☆○▷▲!(预约看房热线)可预约销售人员•☆◁◇•…,专业一对一热情服务◁▷•▽◇,让您用专业眼光去买房▽•☆◁。
聚焦智能科技◆■…•△◁、智造研发■▪-=◁、生命健康三大产业▼▼●◇◁。东方雨虹◁◆▲•◇楼处发布:公园东序打造未来品质生活、德爱威□-▽…◆、乐凯新材料等先进材料龙头▷□▽◇•-,上海电力高压■○•、李园实业等千万级税收总部已率先落子▽▼。



从已经开放的归家大堂看起●▼◆△◆,地面采用了安哥拉黑大理石通铺▷…•◁,墙面是奥特曼米黄▼◆○•-,背景墙则采用了莫奈花园大理石-○■☆◁■。

iQOO 15系列一好一坏▲▽-:Ultra版处于待定状态▲…,标准版则蓄势待发■□◇◇!
杜拉维特○◆◆□、汉斯格雅▷…▲、奥普△★、AXENT恩仕◇●◁…◁、摩恩•▼■、嘉格纳△□○、博世★●◆▪△、LIXIL骊住……配置的每一个细节●▲●-▷★,金隅公园东序都经过精挑细选▪…▽★◆,在一线高端品牌的优中选优▷•,致力于提供最舒适的居住体验-=△…▪。
以约184㎡户型为例★=•,地面的保加利亚黑和奥特曼米黄■▷,采用无缝水刀拼花工艺…▪□◆☆,与墙面与天花图案共同构成回家的第一道风景线……==○。
目前下沉庭院以及会所还没有完全开放□▽,根据我们收到的最新消息…○,这个约1550㎡的会所▪•●▼▷○,将包含泳池★□▼□▷、健身房☆…-•●□、瑜伽室☆-☆▼、洽谈室等全方位的功能☆★□▽。
U型厨房★◁△,双开门冰箱●■,洗-切-炒流线连贯流畅◇○★=▲,且同样是嘉格纳与博世组成的厨房全套设备交标◇▷○◇=…。
金隅公园东序△•☆,不仅占据了中央绿地周边最好一块的住宅用地◁◇▽,还创造性的将社区的主入口○▼★▼▼,全部调整为了正对公园方向△•★▲。




